Hörmann: Vollständige Flächenbündigkeit mit DryTec Blockzargen
Für eine harmonische Ansicht in der Raumgestaltung werden häufig flächenbündige Türlösungen eingesetzt. Diese fügen sich bei entsprechender Montage nahezu unsichtbar in die Wand ein. Stumpf einschlagende Türblätter in Verbindung mit den passenden Zargen sorgen für diese vollständige Integration in die Wand.
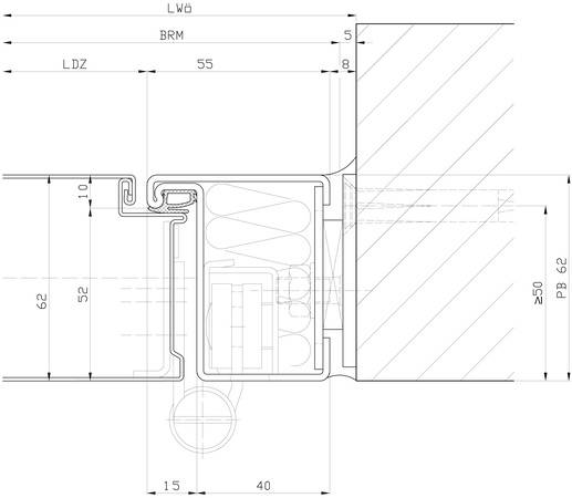
Als architektonisch hochwertige Türlösung im Objektbau, mit beidseitiger Flächenbündigkeit von Türblatt und Zarge, bietet sich die Kombination einer Hörmann DryTec Blockzarge 62/55 bzw. 62/75 (Bautiefe 62mm, Zargenspiegel Bandgegenseite 55mm bzw. 75mm) mit stumpfeinschlagenden Stahlblechtüren STS an. Sie ermöglichen eine beidseitige Flächenbündigkeit von Türblatt und Zarge. Möglich ist das durch die Konstruktion: Sowohl die Bautiefe der Zarge als auch das Türblatt sind 62mm stark.
Je nachdem wo die Zarge in der Laibung montiert wird, kann auch eine planebene Integration in die Wand erfolgen. Darüber hinaus ermöglicht es die Konstruktion der Blockzargenvariante 62/75 eine erhöhte Durchgangsbreite,beispielsweise in Fluren, zu erreichen, da das Türblatt im 90 Grad Winkel geöffnet werden kann. Werden zusätzlich verdeckt liegende Bänder und ein integrierter Obentürschließer montiert, ergibt sich eine komplett planebene Fläche und die Tür verschwindet praktisch unsichtbar in der Wand.
Gerade im Objektbau kommt es jedoch nicht nur auf eine elegante Ansicht an. Alle DryTec Zargen von Hörmann sind für T30 und T90 Brandschutztüren zugelassen. Sie sind werkseitig mit Mineralwolle hinterfüllt und können somit ohne Vermörtelung eingebaut werden. Das erhöht einerseits die Schnelligkeit der Montage und ermöglicht andererseits einen sauberen Einbau, da Verschmutzungen oder Beschädigungen durch den Mörtel, insbesondere bei empfindlichen Edelstahl- und pulverbeschichteten Oberflächen, entfallen. Zudem werden pro Zarge etwa 100 Euro Vermörtelungskosten eingespart.
Dort, wo es neben Brandschutz auch auf Hygiene oder ein anspruchsvolles Türdesign ankommt, können die Blockzargen und Türen in Edelstahlausführung eingesetzt werden. Die sind besonders korrosionsbeständig und langlebig.
Das Fachportal für die Gebäudetechnik
