Schüco: Belüftung und Entwässerung von Pfosten-Riegel-Fassaden
Die ästhetischen Vorzüge von Pfosten-Riegel-Fassaden gehen einher mit der Notwendigkeit nach einer ausreichenden Belüftung und Entwässerung der Falzräume. Eine Studie zu Fassadensystemen des Fraunhofer Instituts für Bauphysik belegt das problemlose bauphysikalische Verhalten der Schüco Systeme FWS 50, FWS 60 und FWS 35 PD in allen Wärmedämmvarianten.
Fassadensysteme mit Verglasung beliebt
Gläserne Fassaden aus Pfosten-Riegel-Konstruktionen stehen bei großen Architekturprojekten hoch im Kurs. Architekten schätzen nicht nur die schmalen Ansichtsbreiten der Systeme und das daraus resultierende transparente Erscheinungsbild der Gebäudehülle, sondern auch die niedrigen U-Werte der Rahmenquerschnitte, die den Einsatz der Systeme auch in energieeffizienten Gebäuden erlauben. Um dies zu gewährleisten, werden die freien Luftbereiche im Profilinneren, die sogenannten Falzräume, mit einer Wärmegedämmung ausgestattet. Entscheidend ist bei den Pfosten-Riegel-Fassadensystemen ein möglichst gutes bauphysikalisches Verhalten der gesamten Systemkonstruktion. Das heißt: Die Falzräume bilden die Zone, in der unter anderem die Belüftung und Entwässerung der Profile stattfinden.
FWS Forschungsprojekt Falzgrundbelüftung
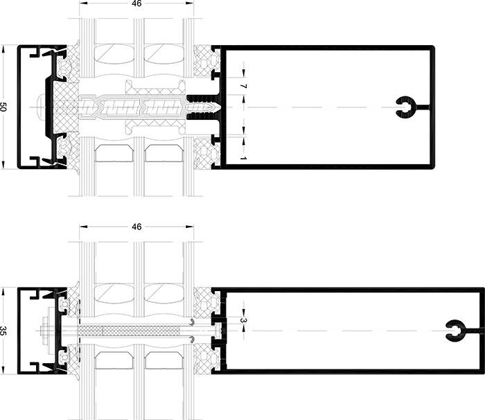
Deshalb standen sowohl das System FW 50+.HI mit 50 mm Ansichtsbreite als auch die Fassadenneuentwicklung FWS 35 PD.SI mit einer Ansichtsbreite von 35 mm des Herstellers Schüco beim Fraunhofer Institut für Bauphysik in Stuttgart im Rahmen eines Forschungsprojektes auf dem Prüfstand. Beide Systeme (50 mm/Gesamtbelüftung, 50 mm/feldweise Belüftung und 35 mm/Gesamtbelüftung) wurden hinsichtlich ihrer Performance in den Bereichen Belüftung und Entwässerung untersucht. Um möglichst breit gestreutes Know-how im Projekt zu vereinen, konnten die Semcoglas Holding GmbH aus Westerstede und die Kömmerling Chemische Fabrik GmbH aus Pirmasens als weitere Forschungspartner gewonnen werden.
So gelang es, die mehrteilig ausgebildeten, neun m2 großen Prüfelemente mit insgesamt neun verschiedenen Verglasungen bzw. Mehrscheiben-Isolierglasaufbauten (MIG) auszustatten. Darunter befanden sich sieben Dreifach-MIG im Scheibenaufbau 6/16/4/16/4 und den unterschiedlichen Abstandhalter/Sekundärdichtstoff-Varianten TPS/Polysulfid, Kunststoff/Polysulfid, Kunststoff/Polyurethan, Kunststoff/Silikon und Edelstahl/Polysulfid. Außerdem kamen zwei Zweifach-MIG in der konstruktiv angepassten Fassadenhälfte mit dem Aufbau 6/16/4 und TPS/Polysulfid und Kunststoff/Polysulfid im Abstandhalterbereich zum Einsatz.
Verglasung bleibt geschützt
Die durchgeführten Untersuchungen zum Belüftungs- und Entwässerungsverhalten der Schüco Fassadensysteme FW 50+.HI und FWS 35 PD belegen deren optimale bauphysikalische Performance. Zwar kann nach starker Schlagregenbelastung Wasser in die Profilkonstruktion eindringen; allerdings trocknen die feuchten Falzräume je nach System und Verglasungsbautiefe in wenigen Tagen wieder ab. Die Temperatur an der äußeren Glaskante der Verglasung passt sich sehr schnell an und die innere Oberflächentemperatur der sichtbaren Glasfläche liegt beim Dreifach-MIG bei allen Systemen über der Taupunkttemperatur. Schließlich zeigt die Auswertung der absoluten Feuchtemengen im Falzraum, dass die gesamtbelüfteten Systeme etwas schneller abtrocknen als das feldweise belüftete System. In allen Fällen bleibt der Glasrand der Mehrscheiben-Isolierglaseinheit langfristig geschützt.
Art der Wärmedämmung beeinflusst Belüftung und Entwässerung nicht
Die getesteten Schüco Systeme FW 50+.HI und FWS 35 PD.SI werden ausreichend belüftet und entwässert. Dieses Ergebnis lässt sich aufgrund der umfangreichen Untersuchungen auch auf die Systeme FWS 50 und FWS 60 in allen Wärmedämmvarianten übertragen. Folglich gilt: Die Falzraumumgebung bleibt bei diesen Schüco Fassadensystemen nicht dauerhaft feucht. Sowohl durch Schlagregen in das Pfosten-Riegel-System eingedrungenes Wasser als auch durch Kondensat entstandenes Wasser trocknen nach einer für das MIG nicht funktionsbeeinträchtigten Zeit wieder ab.
Lesen Sie auch: Schüco Deflame: Feuerbeständige Lösung für Pfosten-Riegel-Fassaden

