So funktioniert die Wärmeverteilung mit modular erweiterbaren Regelsystemen
Das funktioniert, indem das Regelgerät mit Funktionsmodulen an die neuen Anforderungen angepasst wird. Über ein Funktionsmodul sind beispielsweise zwei Heizkreise (mit oder ohne Mischer) statt nur ein Heizkreis regelbar. Doch Modularität ist heute nicht die alleinige Anforderung, wenn es um das Regelsystem der Heizung geht: Auch Nutzerfreundlichkeit und Konnektivität spielen eine wichtige Rolle.
 
 Regelsysteme koordinieren den Heizungsbetrieb
In einem Regelkreis gleicht die Heizungsregelung die Regelgröße, zum Beispiel die Raumtemperatur, mit einem voreingestellten Sollwert ab. Dazu erhält das System ständig Messwerte. Bei einer Abweichung wird ein Steuersignal gegeben und die Stellgröße verändert. Das wirkt sich auf die Regelgröße aus, bis sie dem Sollwert entspricht.
Bei der Heizungsregelung sind Raum- und Vorlauftemperatur die wichtigsten Parameter. Die Regelungstechnik kann unterschiedlich ausgeführt sein. Der wichtigste Unterschied besteht jedoch zwischen raumtemperatur- und witterungsgeführter Heizungsregelung.
Regenerative Energien sind heute meist Bestandteil eines Heizsystems. Moderne Regelsysteme berücksichtigen die Anforderungen, die sich daraus ergeben. So kann ein regenerativer Wärmeerzeuger eine längere Vorlaufzeit benötigen, um die erforderliche Wärme zu erzeugen und einzubringen.
Für eine maximale Effizienz des Gesamtsystems ist dann womöglich eine Zwischenspeicherung sinnvoll. Das Regelsystem koordiniert den Betrieb der Wärmeerzeuger und Pufferspeicher untereinander und stellt die erzeugte Wärme bedarfsgerecht zur Verfügung. Dabei haben regenerative Energien meist Vorrang.
 
 Module für alle Anforderungen
Welche Vorteile bringt die modulare Erweiterbarkeit einer Regelung? Sie macht das Heizsystem flexibel und ohne großen Aufwand erweiterbar. So können in dem modular aufgebauten Regelsystem Logamatic 5000 auch nachträglich hinzugefügte Module Aufgaben übernehmen. Die Funktionsmodule werden dazu in das Regelgerät eingesteckt, wofür in der Grundausstattung vier freie Steckplätze verfügbar sind.
Das Stecksystem mit mechanischer Verriegelung sowie codierte und farblich gekennzeichnete Anschlussstecker ermöglichen eine schnelle und sichere Montage. Die Möglichkeiten der Module reichen von der Regelung eines alternativen Wärmeerzeugers mit Pufferspeicher bis hin zur Steuerung von Kesselkaskaden.
Ein Beispiel: Mit zwei Modulen FM-CM von Buderus lassen sich in einer Mehrkesselanlage bis zu acht Kessel mit einstufigen, zweistufigen oder modulierenden Brennern in beliebiger Kombination betreiben. Praktisch für den Fachhandwerker ist, dass das Regelgerät das eingesteckte Funktionsmodul automatisch erkennt und alle einstellbaren Parameter in der Bedieneinheit anzeigt.
Viele weitere Module decken praktisch alle Anforderung bei einer Anlagenerweiterung oder beim Kesseltausch ab. So integriert etwa das Systemerweiterungs-Modul FM-AM regenerative Wärmeerzeuger ins Heizsystem, beispielsweise Festbrennstoffkessel, Wärmepumpe oder Blockheizkraftwerk.
Das Regelsystem übernimmt dabei gemeinsam mit dem Modul das Management für beide Wärmeerzeuger und – sofern vorhanden – für den Pufferspeicher. Dabei hat beispielsweise der regenerative Wärmeerzeuger als Führungskessel Priorität und wird als erster an- und als letzter Wärmeerzeuger abgewählt.
Die Anlagenbeispiele in diesem Beitrag verdeutlichen, wie sich die Regelung in unterschiedliche Heizsysteme integrieren lässt und welche Funktionen diese – auch über zusätzliche Funktionsmodule – je nach Heizsystem ermöglicht. Zentrale Komponente ist das digitale Regelsystem Logamatic 5000 von Buderus.
Wartung aus der Ferne
Eine weitere wichtige Anforderung an ein digitales Regelsystem ist die Konnektivität. Die Regelgeräte Logamatic 5313 und 5311 haben eine serienmäßige IP-Schnittstelle, die einen Internetanschluss ermöglicht. Damit ergeben sich bei einer Internetanbindung zusätzliche Optionen.
Fachhandwerker können etwa aufgeschaltete größere Heizungsanlagen in Mehrfamilienhäusern, Verwaltungsgebäuden oder Gewerbeobjekten aus der Ferne regeln und im Blick behalten. Das ist etwa über das Webportal „Control Center Commercial“ möglich, welches sich für mittlere und große Anlagen in Gewerbeimmobilien eignet.
Die Version für professionelles Fernwirken bietet im Vergleich zur Basisversion umfassende Zusatzfunktionen, etwa Leitstellenfunktionalitäten, den Versand von Störmeldungen via Email/SMS, eine Langzeit-Aufzeichnung von Anlagendaten und eine vollständige Parametrierung auch auf Serviceebene – dabei wird der Touch-Bildschirm der Regelung 1 zu 1 im Browser des PCs dargestellt.
Zudem werden auch Daten von Solaranlagen und Frischwasserstationen aufgezeichnet. Diese bilden die Basis für eine noch bessere Feinjustierung der Anlage und erlauben so einen zuverlässigen und effizienten Betrieb.
Handwerkspartner haben auf diese Weise einen Überblick über die angebundenen Heizsysteme mit allen Komponenten. Hat der Anlagenbetreiber einem Zugriff zugestimmt – und auch den Umfang des Datenaustausch definiert – lässt sich auf die Anlage über das Webportal www.buderus-commercial.de zugreifen.
Das funktioniert mit fast jedem digitalen Endgerät und den gängigen Browsern. Sicherheit geht dabei vor: Ähnlich wie beim Online-Banking sichert ein eTAN-Verfahren jeden Fernzugriff auf die Anlagen ab und schützt vor unerwünschten Zugriffen.a
 
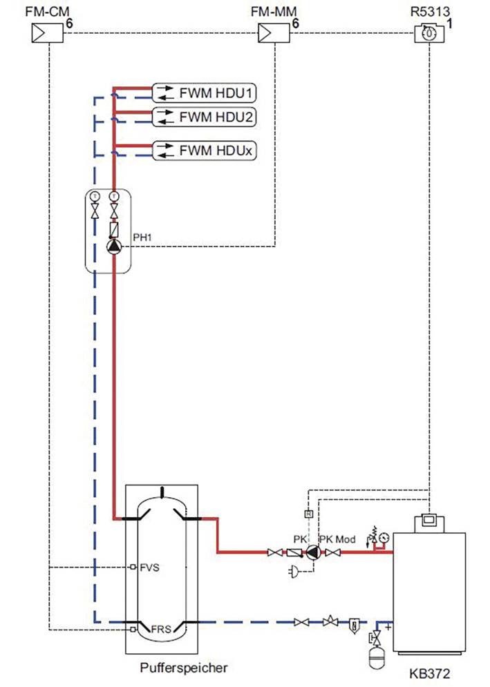
 Anlagenbeispiel 1
Bodenstehender Gas-Brennwertkessel mit zentralem Pufferspeicher zur Versorgung von Wohnungsstationen
Das digitale Regelgerät befindet sich am Wärmeerzeuger. Der Gas-Brennwertkessel mit modulierender Kesselkreispumpe ist über den zentralen Pufferspeicher so eingebunden, dass er die komplette Anlagenlast abdeckt.
Das im Regelgerät enthaltene Funktionsmodul FM-CM ermöglicht diese Strategie-Pufferfunktion. Der zentrale Pufferspeicher versorgt die Wohnungsstationen. Ein ungemischter Heizkreis gewährleistet, dass die gewünschte Netzversorgungstemperatur eingehalten wird.
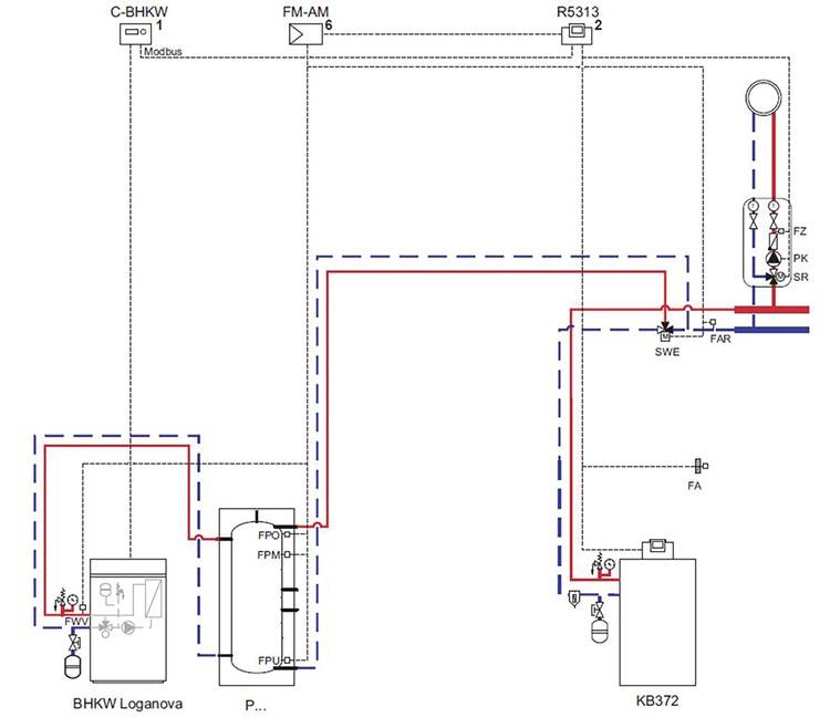
Anlagenbeispiel 2
Bodenstehender Gas-Brennwertkessel, ein BHKW und ein Pufferspeicher; ein Heizkreis
Bei dem Anlagenbeispiel gehören zur regelungstechnischen Ausstattung ein digitales Regelgerät Logamatic 5313, ein Funktionsmodul FM-AM (im Regelgerät) und eine Modbus-Terminaleinheit des BHKWs (Modbus RTU – Remote Terminal Unit). Geregelt wird ein Heizkreis mit Stellglied. Das Funktionsmodul FM-AM erlaubt es, einen alternativen Wärmeerzeuger und/oder Pufferspeicher in das Wärmeerzeugermanagement zu integrieren.
In diesem Fall verbindet es das BHKW mit dem Regelgerät Logamatic 5000 und regelt die Puffer-Bypass-Schaltung. Die Wärmeanforderung an das BHKW erfolgt über Modbus-RTU, die Höhe der Wärmeanforderung bestimmt sich aus der Anlage oder mit eigener Kennlinie.
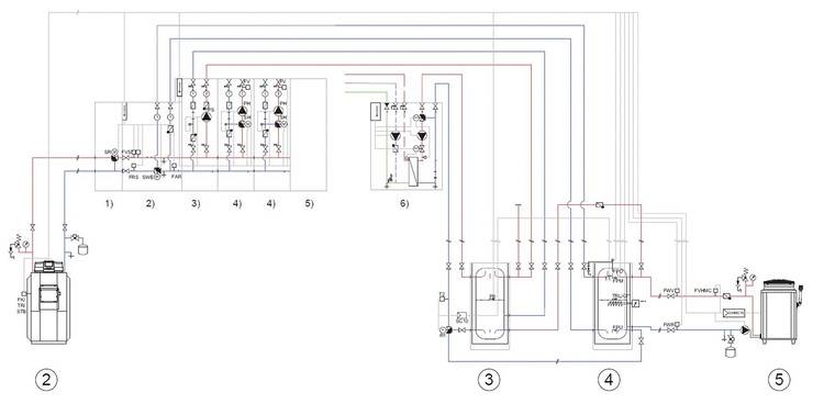
Anlagenbeispiel 3
Brennwertkessel, Wärmepumpe, Pufferspeicher und Frischwasserstation – Anlage bivalent optimiert
Hier ist die Wärmepumpe über den Niedertemperatur-Pufferspeicher eingebunden und übernimmt die Grundversorgung der Anlage. Der Brennwertkessel ist über den Hochtemperatur-Pufferspeicher mit „Load plus“ optimiert eingebunden: Mit dieser Technologie integriert das Regelgerät Logamatic 5000 einen Kessel oder eine Kesselkaskade über einen zentralen Pufferspeicher in die Anlage.
Der Brennwertkessel deckt die Spitzenlast ab. Der Niedertemperatur-Pufferspeicher ist über die Puffer-Bypass-Schaltung (Stellglied SWE, Einbindung Wärmeerzeuger oder Pufferspeicher) in den Anlagenrücklauf eingebunden. Das Warmwassermodul beziehungsweise die Frischwasserstation schichtet ihren Rücklauf über einen zusätzlichen Regler SC10 temperatursensitiv in den Pufferspeicher ein. Das Funktionsmodul FM-CM ist nur für die Gas-Wärmepumpe erforderlich.
Markus Möser ist Produktmanager Sales Technical Support „Systeme und Systemprodukte“ bei Buderus Deutschland.

 
  
  
  
  
  
  
  
  
 
 
  
  
  
  
  
 