Barrierefreie Badplanung: Wie sich DIN-Norm und Ästhetik verbinden lassen
Ein Leben im Rollstuhl ist ein Schicksal, das manche Menschen von Beginn des Lebens an tragen müssen, andere ereilt es einfach so und ganz plötzlich. Meist ist dann ein Anpassen des Wohnraums erforderlich, damit dessen uneingeschränkte Nutzung weiter ermöglicht wird – das trifft besonders aufs Bad zu.
Allerdings steht beim Umbau häufig allein die Funktion im Vordergrund. Das ist schade. Denn mit dem Verlust der uneingeschränkten Beweglichkeit verlieren Menschen ja nicht den Wunsch nach einem schönen, angenehmen Umfeld.
Deshalb gilt: Einer durchdachten Raumeinrichtung muss man nicht ansehen, dass sie auch DIN-Normen erfüllt. Vielmehr kann die Aufteilung einfach den Eindruck einer großzügigen Planung vermitteln.
Viel Platz empfinden die meisten Menschen als schön. Die Stigmatisierung, die so häufig durch Optik und Flair eines Krankenhauses vermittelt wird, lässt sich spielend umgehen. Das folgende Planungsbeispiel zeigt, worauf es ankommt.
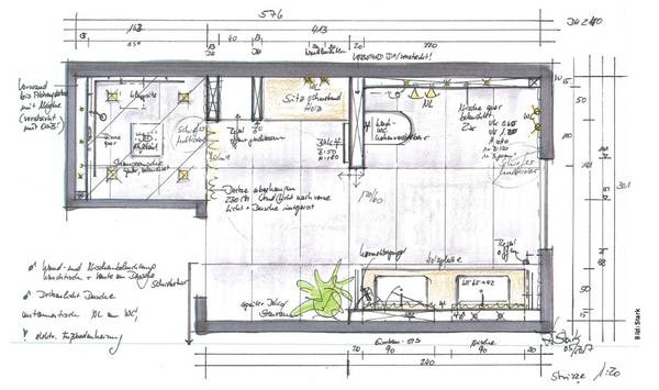
Plan des Architekten „verfeinert“
Die Ausgangslage: Ein Ehepaar wird von einem Schicksalsschlag getroffen – der Mann erkrankt an MS (multipler Sklerose). Die Auswirkungen machen Zeiten im Rollstuhl unumgänglich. Das Paar errichtet einen neuen Bungalow. Es wird darauf geachtet, dass alle Bereiche mit einem Rollstuhl gut zu nutzen sind.
Der beauftragte Architekt hatte bei der Planung natürlich alle DIN-Normen beachtet – aber das Paar wollte dazu meine Meinung speziell zum Thema Badgestaltung einbeziehen. Nun hatte ich den Vorteil, dass ich den Bauherrn schon ein wenig kannte – ein wichtiger Punkt bei der individuellen Planung für ein rollstuhlgerechtes Bad.
Mit dem Leben im Rollstuhl hört die Liebe zu schönen Räumen und Design ja nicht auf – man muss nur mehr über Nutzungsmöglichkeiten nachdenken und größere Bewegungsflächen beachten. Zudem wird das Bad ja von allen Bewohnern genutzt – ein Grund mehr, den Charme einer Krankenhauseinrichtung gar nicht erst aufkommen zu lassen.
Blickpunkt WC: individuelle Fähigkeiten beachten
Bei der Betrachtung des Architektenplanes war eines direkt klar: Die Position des WCs ist zwar für alle Varianten sinnvoll – also von rechts und links anfahrbar –, aber für die Gestaltung eines Privatbades wenig geeignet.
Das WC stand auf dem Präsentierteller, das hatte keinen Charme. Die erste Frage an den Mann zielte deshalb darauf ab, was denn „seine starke Seite“ sei, über die der Wechsel vom Rollstuhl aufs WC leichter abzuwickeln wäre, falls es nur von einer Seite anfahrbar sein sollte. Dahinter stand die Absicht, das WC sowohl optisch gut in den Raum zu integrieren wie auch den notwendigen Intimbereich zu erhalten – und das WC dennoch perfekt für den Rollifahrer nutzbar zu machen.
Das WC wurde mit einer raumhohen Wand in den Raum eingedreht. Zu beachten ist dabei, dass der Bereich vor dem WC noch 150 cm² Fläche freilässt – der benötigte Platz, um sich mit einem Rollstuhl bequem drehen zu können
Die Toilette ist beim Betreten des Raumes nicht sichtbar und trotzdem durch die Bewegungsfläche gut von rechts seitlich anfahrbar. Die WC-Wand ist so aufgebaut, dass Stützklappgriffe – sollten sie mal notwendig werden – nachträglich angebracht werden können. Aktuell ist eine schicke, verchromte Griffreling zur linken Seite ausreichend. Da diese auch zeitgleich als Papierhalter genutzt wird, passt sie sich hervorragend in das Badambiente ein – ohne Rehacare-Optik zu erzeugen.
Für alle Badnutzer sinnvoll – und in der DIN auch erwähnt – ist die Möglichkeit, das WC in der Höhe variabel verstellbar auszuführen. Dazu gibt es mehrere Möglichkeiten. Im Stil der Einrichtung und der Liebe der Bauherren zu gutem Design geschuldet, wurde ein System ausgesucht (Tecelux von Tece), das neben der Höhenverstellung über eine Näherungselektronik und Geruchsabsaugung verfügt.
Darüber hinaus erhielt das Bad ein Dusch-WC (Tece One). Das ist für alle Badnutzer eine sinnvolle Ergänzung für die tägliche Hygiene – egal ob mit oder ohne Handycap. Aber gerade bei der Einrichtung eines barrierefreien Bades ist das eine zusätzliche Entlastung für körperlich eingeschränkte Nutzer.
Blickpunkt Waschtisch: Bereich behutsam angepasst
Die Waschtischanlage sollte aus zwei getrennten Becken bestehen – das sind die Eigentümer bereits gewöhnt und möchten es beibehalten. Wie üblich sind Ablagefläche und Stauraum am Waschplatz ebenso notwendig wie sinnvoll. Nun kommt hinzu, dass die DIN-Norm für ein barrierefreies Bad die Höhe des Waschtisches bei 80 cm sieht, der Waschtisch unterfahrbar sein muss und der Spiegel nicht über 100 cm Höhe anfangen sollte.
Um hier eine einheitliche, optisch ansprechende Lösung für beide Nutzer zu finden, die sowohl im Sitzen wie auch im Stehen passt, war Kreativität gefordert. Es wurden gemeinsam mit dem Paar im Bad unterschiedliche Höhen und Maße ausprobieren. Nur so konnten wir herausfinden, wie eine einheitliche Konsolenanlage für beide Nutzertypen funktionieren kann.
Es war von Anfang an klar, dass es nicht dem optischen Anspruch genügt, einfach zwei Waschtische in unterschiedlichen Höhen und mit unterschiedlicher Gestaltung nebeneinanderzuhängen. Der Makel: So ist auf den ersten Blick zu sehen, dass sich einer eingeschränkt bewegt. Das grenzte in den Augen der Auftraggeber an Stigmatisierung und sollte unbedingt vermieden werden.
In diesem Beispiel wurde eine Lösung gefunden, die auf die tatsächlichen Gegebenheiten eingeht. Da der Bauherr recht groß ist, fanden wir heraus, dass beide mit einer Waschtisch-Oberkante von 85 cm Höhe klar-kommen (also 5 cm höher als DIN). Und dass der Spiegel mit der Unterkante bei 105 cm positioniert werden kann (wieder 5 cm höher als DIN), ohne das Blickfeld des Rollstuhlfahrers zu beeinträchtigen.
Die Vorwand für den Doppelwaschtisch wurde deckenhoch gestaltet, um Platz für Einbauspiegelschränke zu schaffen. Eine deckenhohe Fliesengestaltung führt zudem zu mehr Ruhe im Raum. In der Ausrichtung wurde die Linie der WC-Vorwand aufgenommen. Das schafft Aufgeräumtheit und Ruhe im Raum. Durch einen geschickten Fugenschnitt unterstützt, führt das zu einer optisch perfekten Inszenierung. Beide Porzellanbecken ruhen auf einer hellen Holzplatte mit ausreichend Abstellflächen. Die filigranen Waschplätze aus Saphirkeramik (Laufen) werden dem Anspruch einer hochwertigen Badgestaltung gerecht.
Übrigens: Die Wahl der Siphons muss nicht immer auf den üblichen Unterputzsiphon fallen – auch Designsiphons können mit einem Versprungrohr nahe an die Wand gelegt werden. Das ermöglicht eine komfortable Unterfahrbarkeit im modernen Design.
Der angepasste Einbauspiegelschrank erstreckt sich auf 180 cm Breite – das entspricht dem Maß der Konsolenplatte. Beide Badnutzer haben ihren eigenen Bereich zur Verfügung. Drei senkrechte Lichtbänder sorgen für eine Gesichtsausleuchtung von beiden Seiten, ohne Schatten zu werfen. Für die kleinen Teile ist ausreichend Stauraum geschaffen.
Blickpunkt Duschplatz: großzügig und einladend
Der Duschbereich wurde im ursprünglichen Architektenplan großzügig bemessen. Auf der Wunschliste der Bauherren stand neben der Handbrause darüber hinaus der Einbau einer großzügigen Regenbrause. Eine Steuerung über eine Thermostateinheit und der Einbau einer Shampoo-Nische sollten das Ambiente abrunden und wurden nachträglich vorgesehen.
Da etwas mehr Fläche zur Verfügung stand als die notwendigen 150 cm², wurde die Rückseite der Dusche mit einer deckenhohen Trockenbauwand versehen. Sie bietet ausreichend Platz für Unterputzarmaturen und eine raumgreifende Nische.
Um den doch recht geschlossenen Bereich ausreichend hell zu bekommen, wurde eine Zwischendecke eingezogen, in der vier dimmbare LED-Spots in Warmweiß für Licht und Wohlgefühl sorgen. Die Regenbrause wurde ebenfalls in der eingezogenen Decke untergebracht. Die Wände sind, wie die DIN es vorschreibt, stabil ausgeführt, um Griffelemente anbringen zu können. Mit dem System „Plan Care System“ von Keuco konnten sich die Bauherren anfreunden.
Die hübsche Reling läuft über Eck und sorgt für Sicherheit im Sitzen und im Stehen, selbst an der integrierten Brausestange darf man sich festhalten. Um nicht die Bewegungsfläche für barrierefreie Duschplätze zu unterschreiten, war es leider nicht möglich, eine gemauerte Sitzbank vorzusehen. Ein Klappsitz erfüllt jetzt den gleichen Zweck.
Um in die Duschzone hineinzugelangen, muss ein 101 cm breiter Durchgang zur Verfügung stehen. Die restlichen knapp 50 cm in der Planung wurden genutzt, um vor der Dusche eine gemauerte Regaleinheit zu schaffen. Zusätzlicher Stauraum, der ja durch die unterfahrbare Konsolenanlage fehlt.
Blickpunkt Raumgestaltung: erforderliche Maße einbezogen
Der frei bleibende Bereich zwischen Regal und WC-Rückwand bot sich an, um hier eine Sitzgelegenheit zu integrieren. Eine warme Holzplatte – baugleich mit der Konsolenplatte der Waschtischanlage – lädt ein zum Hinsetzen, Füße-Abstellen, Ablegen von diversen Dingen und vermittelt ein wohnliches Raumgefühl.
Der Platz darunter wurde sinnvoll mit Auszugcontainern versehen. Davor bleibt noch ausreichend Raum, um einen elektrisch gesteuerten Badheizkörper nahe der Duschzone zu planen. Damit Handtücher nach dem Duschen griffbereit und warm zur Verfügung stehen.
Schiebetüren als Alternative zur üblichen Drehtür
Die Architektur des Raumes ist durch die einzelnen Badbereiche festgelegt – wenn auch jetzt ein wenig verändert im Vergleich zum Architektenplan.
Neu in die „Überplanung“ aufgenommen wurde zudem eine Schiebetür statt einer sich nach außen öffnenden Drehtür – wie in der DIN angegeben. Im Flurbereich stand ausreichend Platz zur Verfügung, um eine satinierte Glasscheibe sanft an der Wand entlangführen zu können. Für Rollstuhlfahrer ist eine Schiebetür einfacher zu öffnen als eine Drehtür. Kein Heranfahren und Zurückfahren, sondern ein einfaches Hindurchrollen. Eine sinnvolle und komfortable Kleinigkeit.
Zurückhaltende Betonoptik mit warmen Akzenten
Zur Gestaltung der Raumflächen wünschten sich die Bauherren eine kühle, großzügige Betonoptik, kombiniert mit Elementen, die Wärme vermitteln. Entsprechende Fliesen im Format 120 x 60 cm wurden quer im Raum verlegt. An den Wänden wurden sie im Fugenbild in manchen Bereichen deckenhoch geführt.
Um die Längsstreckung des Raumes optisch abzumildern, wurde die ganze Kopfwand mit einem eher auffallenden Material gestaltet, mit Bricks der Ausführung Schiefer-Multicolor. Das Material wiederholt sich an der Stichwand zur Duschzone hin und sorgt dort zusätzlich für einen optischen Hingucker. Die großzügigen Nischen in den Bereichen WC und Dusche wurden dem Fugenschnitt angepasst und gestalten den Raum ebenso wie eine warme Farbe, die an den übrigen Wänden und an der Decke aufgebracht wurde.
Lichtinszenierung rundet Raumgestaltung ab
Zur Abrundung und Inszenierung des Bades gehört noch das Element Licht. Deckenleuchten sollten nur in der Duschzone für ausreichend Helligkeit sorgen – dazu wurde die abgehängte Decke in dem Bereich vorgesehen. Neben dem Funktionslicht am Spiegelschrank sorgen diverse Wandleuchten für ein ausgeglichenes und angenehmes Lichtszenario im Raum. Kleine LED-Spots in den Nischen setzen feine Akzente. Das automatisch gesteuerte Nachtlicht im Bereich des WCs wurde vom Kunden zunächst infrage gestellt, ist aber mittlerweile ein sehr willkommenes Ausstattungsmerkmal.
Fazit: Kleine Unterschiede erzeugen große Wirkung
Rückblickend stellt sich die Frage, was denn für Planer den Unterschied ausmacht bei der Gestaltung von Badplanungen im „normalen Fall“ zu Einrichtungen, die nach DIN-Vorgaben für Rollstuhlnutzung geplant wurden. In diesem Beispiel zeigt sich: nur die Maßeinheit der Bewegungsfläche – andere große Unterschiede existieren in der Grundkonzeption nicht.
Die Kleinarbeit allerdings fängt dann bei der Detailausstattung an. Aber eigentlich ist das Usus in jeder individuellen Badplanung. Der Wunsch und die Bedürfnisse der Bauherren sind zu beachten, zu erörtern und umzusetzen.
Die DIN-Normen sollten bekannt sein und überprüft werden, um die Planung dann eventuell den Fähigkeiten des Nutzers anzupassen. Darüber hinaus gilt, dass eben auch die optische Ausstrahlung des Raumes mit all seinen Elementen erst eine gute Einrichtung ausmacht. Egal, ob barrierefrei oder nicht.
In diesem Beispiel haben wir die Höhen der Waschtische dem Nutzer angepasst, die Stützklappgriffe am WC nur vorbereitet und sogar ein WC mit üblicher Ausladung gewählt – ansonsten entspricht die Badeinrichtung in erster Linie dem Geschmack der beiden Bauherren und weitestgehend den DIN-Normen.
Dieser Artikel von Andrea Stark ist zuerst erschienen in SBZ Ausgabe: 03-2019. Andrea Stark ist Innenarchitektin und seit mehr als 25 Jahren im Bäderbau mit ihrem Unternehmen „Starkberaten“ in Overath bei Köln tätig.
Auszug aus DIN 18 040-2
Das ist u. a. zu beachten:
- Bewegungsflächen 150 x 150 cm
- Drehtür nach außen öffnend
- Wände stabil ausgebildet, um auch später Stützgriffe anbringen zu können
- Armaturen als Einhebelmischer, möglichst schwenkbar
- Duschplatz stufenlos begehbar mit rutschhemmendem Belag
- Waschtisch unterfahrbar (Oberkante 80 cm), möglichst mit Ablagefläche; Spiegelfläche beginnend ab 100 cm Höhe
- WC mindestens von einer Seite seitlich anfahrbar mit einer Breite der Freifläche von 90 cm (Nutzungsverhalten erfragen, wie nähert sich die eingeschränkte Person am besten?)
- Falls nötig WC-Tiefe anpassen, Rückenlehne und seitliche Stützklappgriffe vorsehen
Das könnte Sie auch interessieren
Oder lesen Sie hier alles über das Barrierefreie Bad

Dieser Artikel ist zuerst in SBZ erschienen. Mehr Informationen erhalten Sie im kostenlosen SBZ Newsletter.
Zur Anmeldung geht es hier.
Das Fachportal für die Gebäudetechnik
