Heizlast: Die wichtigsten Fakten zur DIN EN 12831 vom April 2020
Um den Einstieg in eine solche Norm zu erleichtern, nimmt man sich keinen kritischen Sonderfall vor, bei dem eventuell auch Spezialisten ausrasten. Für den Einstieg reicht ein Standardfall mit geringem Schwierigkeitsgrad. Hat man den erstmal kapiert, läuft es irgendwann auch mit schwierigeren Typen.
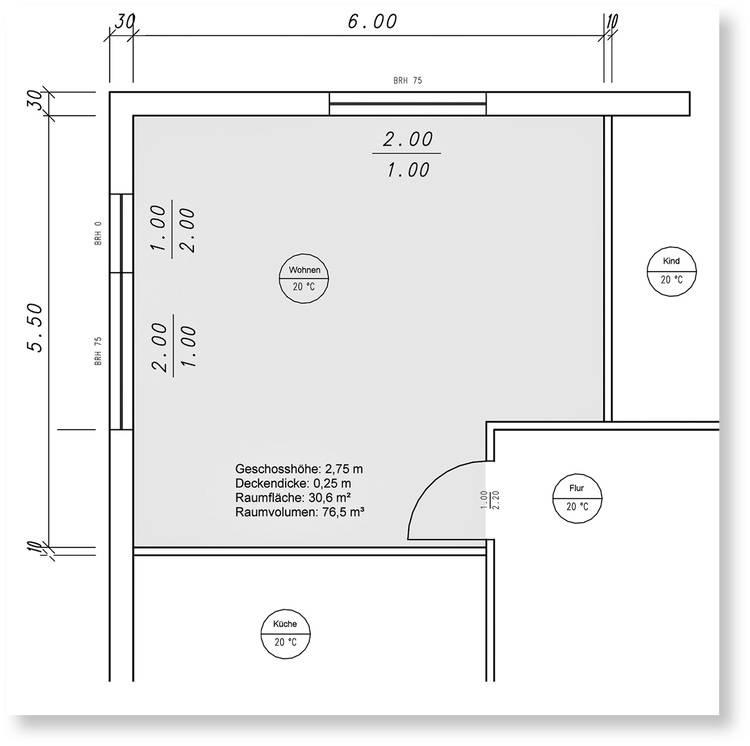
Beispiel: Einfacher Standardraum
Das hier abgebildete und berechnete Wohnzimmer soll mit einer genau angepassten Flächenheizung oder aber einem Heizkörper erwärmt werden. Man ist sich noch nicht sicher, welche Vor- und Rücklauftemperaturen vom zukünftigen Wärmeerzeuger geliefert werden. Ist es eher die knüppelheiße Pellet-Anlage mit 70 °C im Vorlauf oder wird es die vergleichsweise coole Wärmepumpe mit nur 35 °C, die dem Bau einheizt? Egal, um die notwendige Leistung zu bestimmen, ist es am genauesten, wenn eine Heizlast ermittelt wird. Einerseits kann dann für das gesamte Gebäude der Wärmeerzeuger dimensioniert werden. Andererseits findet man die jeweilige notwendige Heizleistung einer jeden Heizfläche eines Raumes, also auch dieses Wohnzimmers.
Die Baubeschreibung
Zugegeben, man muss zur Ermittlung einer Heizlast einiges an Daten zusammentragen. Aber das muss der Architekt ohnehin schon. Um ein Gebäude entsprechend genehmigungsfähig beim Bauamt einreichen zu können, sind allerhand Details über das Bauvorhaben mitzuteilen. Der Architekt liefert daher meistens die notwendigen Details in Form des Wärmeschutznachweises.
Gerne wird daher auch schon mal durcheinandergewürfelt, was denn nun da gerade erstellt wird, der Wärmeschutznachweis oder die Heizlast.
Unterschied Wärmeschutznachweis vs. Heizlast
Der ausreichende Wärmeschutz stellt eine Prognose über die Energiemenge, die im Laufe eines Jahres notwendig sein wird, um das Haus zu erwärmen. Das kann man beispielsweise in Liter Heizöl oder Kubikmeter Erdgas pro Jahr ausdrücken. Die Aussage kann dann sein: Du brauchst 1225 Kubikmeter Gas pro Jahr, um dein Haus warmzukriegen, oder entsprechend 12250 kWh.
Die Heizlast hingegen wird in Watt angegeben und kennzeichnet die Momentaufnahme eines Hauses bei tiefer Außentemperatur. Die Aussage kann dann sein: Du benötigst einen Heizkessel mit 10250 Watt Leistung und im Wohnzimmer genau 875 Watt, um deine Wunschinnentemperaturen auch an kalten Tagen zu gewährleisten
Für den hier betrachteten, einfachen Fall sollen vorerst nur diese Details und die Zeichnung bekanntgegeben werden:
Erste Festlegungen
Standort des Wohnhauses: 59320 Ennigerloh mit Norm-Außentemperatur von –10°C.
Das zu berechnende Wohnzimmer liegt im ersten Obergeschoss, wobei sich darunter und darüber durchgängig beheizte Wohnräume mit einer Temperatur von 20°C befinden.
Die richtigen Schlüsse ziehen
Die Schlüsse, die man jetzt schon ziehen kann, sind logisch nachvollziehbar. In Ennigerloh beträgt die zu berücksichtigende Außentemperatur –10°C. Soll das Wohnzimmer, wie im Raumstempel des Grundrisses angegeben, auf 20°C erwärmt werden, so beträgt die Temperaturdifferenz zwischen drinnen und draußen im Auslegungsfall 30 Kelvin (K).
Für die zwei Arten der Wärmeabgabe ergeben sich daher nachfolgend zusammengestellte thermodynamische Prozesse.
Theorie zu Transmissionsverlusten
Wird die Wärme durch eine Wand nach außen abgeleitet, so steht die Wärmeabgabe im Zusammenhang mit dem sogenannten Wärmedurchgangskoeffizienten, auch U-Wert genannt. Der U-Wert in W/(m²K) gibt an, was man anhand der Einheit schon ablesen kann: Watt pro Quadratmeter Fläche pro Kelvin Temperaturdifferenz.
Beispiel:
Die Heizlast Φ (sprich fi) ergibt sich bei einer betrachteten Fläche von A = 1 m², einem U-Wert der Wand von 1,0 W/(m²K) und einer Temperaturdifferenz von Δϑ = 30 K:
Φ = A x U x Δϑ
Φ = 1 m² x 1,0 W/(m²K) x 30 K
Φ = 30 Watt
Da es sich um eine einfache Multiplikation handelt, sind die Beziehungen also absolut klar. Umgangssprachlich erhöht sich die abgegebene Wärmeleistung so:
- je mehr Fläche betrachtet wird und Wärme abgibt,
- je größer (schlechter) der U-Wert ist, also je weniger Dämmung eingebaut wurde,
- je höher die Temperaturdifferenz ist, also je kühler es draußen oder je wärmer es drinnen ist.
Für dieses betrachtete Wohnzimmer schauen wir uns kurz die Nachbarräume an. Im Osten das Kinderzimmer mit 20 °C, im Nordosten der Flur ebenfalls mit 20 °C und im Süden befindet sich die Küche gleichfalls mit 20 °C. Aus der Beschreibung dieses Wohnzimmers ist bekannt, dass sich darüber und darunter ein gleichartiger Wohnraum mit 20 °C Innentemperatur befindet. Das bedeutet für dieses Wohnzimmer, wenn es eingebettet zwischen Räumen mit 20 °C als Innentemperatur liegt, dass dann auch keine Wärme an diese Nachbarräume abgegeben wird. Die Temperaturdifferenz als einer der Faktoren der Transmissionsverluste beträgt dann nämlich Null.
Beispiel:
Φ = 1,0 m² x 1,0 W/(m²K) x 0 K = 0 W
Für die Transmissionsverluste müssen in diesem speziellen Fall daher nur die U-Werte der Außenbauteile erfasst werden, also für Außenfenster, Außentür und Außenwand.
Theorie zu Lüftungsverlusten
Bezogen auf die Lüftungsverluste soll hier vereinfachend angenommen werden, dass sehr luftdichte Fenster eingebaut wurden. Das Wohnzimmer erhält keine maschinelle Zu- oder Abluft und soll per Hand gelüftet werden. Unter Auslegungsbedingungen bedeutet dies, dass man bei –10 °C die Außenluft in den Raum lässt. Um die Raumtemperatur auf wohlige 20°C zu bringen, muss die Außenluft um 30 K erwärmt werden.
Über die Luftmenge, die man als Tausch von eiseskalter Frischluft gegen erwärmte Raumluft ansetzen möchte, könnte man jetzt stundenlang streiten oder diskutieren. Jedoch helfen die allgemein anerkannten Regeln der Technik. Man schlägt nämlich üblicherweise einen halbfachen Luftwechsel pro Stunde vor. Es wird dann rechnerisch schon sehr einfach, wenn man bedenkt, dass man jetzt nur noch die Erwärmung der Außenluft von beispielsweise –10°C auf 20°C berechnen muss, um die Lüftungsheizlast korrekt zu ermitteln.
Hierzu benötigt man dann noch eine einfache Stoffkonstante der Luft, die 0,34 Wh/(m³K) unterstellt.
Danach benötigt man also Energie von 0,34 Wh um 1 m³ Luft jeweils um 1 K zu erwärmen.
Eingesetzt in ein beliebiges Beispiel entschleiert sich dieser Wert auch ganz schnell:
Raumvolumen: 200 m³
demnach halbfacher Luftwechsel: 100 m³/h
Temperaturdifferenz: 30 K
Φ = 100 m³/h x 30 K x 0,34 Wh/(m³K) = 1020 W
Es wird eine Leistung von 1020 Watt benötigt, um kontinuierlich einen Luftvolumenstrom von 100 m³/h von –10°C auf 20°C zu erwärmen.
Festlegungen für das Wohnzimmer
U-Werte inklusive einer Wärmebrücke:
Außenwand mit 0,50 W/m²K
Außenfenster und Außentür mit jeweils 1,00 W/m²K
Konkrete Berechnung für dieses Wohnzimmer
In der Heizlast werden also nur noch ein paar Berechnungen fällig:
Transmission konkret
Die Außenwand des Wohnzimmers im Norden hat eine Länge von 6,00 m und bis zur Außenkante (links) plus 0,3 m und bis zur Mittelachse der Innenkante 0,05 m (rechts). Damit beträgt das Längenmaß 6,35 m.
Als Höhe wird die sogenannte Geschosshöhe angenommen, also hier 2,75 m.
Die Außenfläche der Wand beträgt also insgesamt 17,46 m². Allerdings steckt in dieser Wand noch ein Außenfenster von 1 m x 2 m = 2 m².
Dort, wo dieses Fenster Wärme abgibt, ist keine Wand, die Wärme abgibt. Es bleibt bereinigt nur eine Außenwandfläche von 15,46 m².
Die Schlussfolgerung im Norden des Wohnzimmers
ΦAW,N = 15,46 m² x 0,5 W/(m²K) x 30 K = 232 W
ΦAF,N = 2,00 m² x 1,0 W/(m²K) x 30 K = 60 W
Die Schlussfolgerung im Westen des Wohnzimmers
ΦAW,W = 12,09 m² x 0,5 W/(m²K) x 30 K = 181 W
ΦAF,W = 2,00 m² x 1,0 W/(m²K) x 30 K = 60 W
ΦAT,W = 2,00 m² x 1,0 W/(m²K) x 30 K = 60 W
Die Summe aller Transmissionsverluste beträgt
ΦAW,N = 232 W ΦAF,N = 60 W
ΦAW,W = 181 W
ΦAF,W = 60 W
ΦAT,W = 60 W
ΦTransmission = 593 W
Lüftungsheizlast
In diesem Wohnzimmer mit den im Grundriss beschriebenen 76,5 m³ Raumvolumen ergibt sich ein Luftwechsel von 38,25 m³/h denn 0,5 h-1 x 76,5 m³ = 38,25 m³/h.
Die Leistung für diesen kontinuierlichen Luftvolumenstrom der von –10 °C auf 20 °C erwärmt wird, ergibt die Lüftungsheizlast
ΦLüftung = 38,25 m³/h x
30 K x 0,34 Wh/(m³K) = 390 W
Gesamte Heizlast
Um sich wohlzufühlen und daher die Verluste aus Transmissions- und Lüftungsheizlast zu kompensieren, wird es notwendig, seine beide Lasten gleichzeitig zu liefern. Die gesamte Heizlast ergibt sich daher mit
ΦGesamt = ΦTransmission + ΦLüftung
ΦGesamt = 593 W + 390 W = 983 W
Zusammenfassung
In diesem Wohnzimmer wird im Auslegungsfall in Ennigerloh, also bei –10 °C, eine Heizlast von 983 W erwartet. Es ist noch keine Entscheidung getroffen worden, mit welcher Beheizung hier gegengesteuert werden soll. Dieser Wert steht daher unabhängig davon fest, ob eine Fußbodenheizung mittels Wärmepumpe oder ein Heizkörper mittels Scheitholzkessel die Leistung erbringt.
Im Prinzip haben Sie soeben die Heizlast begriffen oder Ihr Wissen aufgefrischt.
Es werden also immer sämtliche Transmissions- und Lüftungsverluste zusammengezählt. In diesem sehr einfachen Fall kamen nur die Außenflächen, also Außenfenster und Außenwände zum Tragen. Es reichte in diesem Fall aus, die Lüftungsheizlast nur aus dem Mindestluftwechsel zu bestimmen.
Wärmebrücken wurden pauschal mit einem Zuschlag von 0,05 W/(m²K) berücksichtigt und im Text dieses Berichts bereits angerechnet. Das Formblatt zur Heizlast weist diese Zuschläge nochmals separat aus.
Arbeitet man die Heizlast nach DIN EN 12831, also der allgemein anerkannten Regel der Technik durch, so ergeben sich noch einige zusätzliche Details. Das Prinzip lässt sich aber wie beschrieben zusammenstellen. Damit haben Sie also die Grundzüge dieses Verfahrens erkannt.
Besonderheiten und Details
Die Reduzierung der Problemstellungen aus dem Beispiel machten es schon deutlich, dass die „reale Welt“ der Heizlast umfangreicher betrachtet werden muss. Es klang schon an, dass immer auch Wärmebrücken innerhalb von Außenbauteilen unterstellt werden müssen. Aber damit ist es bei Weitem nicht genug. Nachfolgende Details und Besonderheiten gilt es bei einer echten Auseinandersetzung mit einer Heizlast noch zu berücksichtigen.
Luftdichtheit
Den Mindestluftwechsel aus dem durchgerechneten Beispiel kann man nur dann berücksichtigen, wenn das Gebäude eine gewisse Dichtheit aufweist. Wenn die Bude undicht ist und es sprichwörtlich zieht wie Hechtsuppe, dann können natürlich auch die Undichtigkeit und daraus resultierend die sogenannte Infiltration zum Tragen kommen.
Maschinelle Lüftung
Ist das Haus an sich zwar dicht, wird aber mit einer Lüftungsanlage belüftet, ändert sich die Heizlast gegenüber der Annahme eines Mindestluftwechsels. Insbesondere wenn eine kontrollierte Wohnungslüftung mit Wärmerückgewinnung berücksichtigt wird, verändert sich das Ergebnis zum Teil erheblich. Man denke nur mal daran, dass man die Außenluft im Falle einer Lüftung mit Wärmerückgewinnung nicht mehr von –10 °C erwärmen müsste, sondern vielleicht nur noch von 15 °C.
Bauteile ans Erdreich
Die Außenwände und -fenster des Beispiels sind einer Normaußentemperatur ausgesetzt. Dies würde allerdings nicht für eine Kellerwand gelten. Je nachdem, wie tief man diese Wand eingebuddelt hätte, würde diese Wand ja trotz niedriger –10 °C Außentemperatur im Winter immer in frostfreier Tiefe stehen. Es gibt daher Korrekturen für sogenannte erdreichberührte Bauteile, seien es Wände oder Fußböden.
Für die Wärmeabgabe ans Erdreich ist es zudem auch noch interessant, in welcher Tiefe sich das Grundwasser befindet. Wasser in nächster Nähe zum Kellerfußboden leitet prinzipiell mehr Wärme ab als beispielsweise trockener Sand unterm Haus.
Berechnen an PC oder Smartphone
Sie merken anhand der bereits geschilderten Besonderheiten, dass man die Heizlast zwar grundsätzlich verstehen kann, der echte Durchblick und die echte Berechnung aber ein sehr strukturiertes und formelles Vorgehen erfordern.
Strukturiertes Vorgehen ruft immer auch einen etablierten Helfer auf den Plan. Entweder wird eine Heizlast daher mit der Unterstützung eines PC-Programms erledigt oder auch per App auf Smartphone oder Tablet. Damit wird die Bearbeitung dann doch überschaubar und die Software fragt meistens sehr clever nach Vorgaben und Eventualitäten, während der Nutzer sich auf die eben beschriebenen Kenntnisse konzentrieren kann. Man kann also ruhig ran an die Heizlasten dieser Welt.
Übrigens, insbesondere, wenn man die Berechnung bezahlt bekommt, erwischt man sich dabei, wie es dann sogar Spaß machen kann.
Demo einer Software zur Heizlastberechnung
Dieser Artikel von Dipl.-Ing. (FH) Elmar Held ist zuerst erschienen in der SBZ Monteur Ausgabe 10/2021. Dipl.-Ing. (FH) Elmar Held ist verantwortlicher Redakteur des SBZ Monteur. Er betreibt ein TGA-Ingenieurbüro, ist Dozent an der Handwerkskammer Münster und an der Hochschule Düsseldorf sowie öffentlich bestellter und vereidigter Sachverständiger.
www.ingenieurbueroheld.de

