Trinkwasserhygiene: Chlordioxid geht Legionellen an den Kragen

Das vom kommunalen Versorgungsunternehmen bereitgestellte Trinkwasser ist nicht steril. Das bedeutet, dass ständig Mikroorganismen in die Wasser führenden Systeme eines Gebäudes eingetragen werden. Sie lagern sich auf wasserbenetzten Oberflächen ab und bilden Biofilme – dies gilt auch für hygienisch relevante Keime wie Legionellen, die das Trinkwasser kontaminieren können.
Ein Planer hat durch das Beachten der technischen Regelwerke sicherzustellen, dass die Vorgaben der Trinkwasserverordnung eingehalten werden: „Trinkwasser muss so beschaffen sein, dass durch seinen Genuss oder Gebrauch eine Schädigung der menschlichen Gesundheit insbesondere durch Krankheitserreger nicht zu besorgen ist.“
Gibt es diesbezüglich mittlerweile einen Zielkonflikt mit anderen Vorgaben? Gefährden die Ziele der Energie- und Rohstoffeffizienz die Trinkwasserhygiene? Diese Frage stand im Mittelpunkt des BMWi-Verbundvorhabens Energieeffizienz und Hygiene in der Trinkwasserinstallation. Das Projektergebnis zeigt, dass die Optimierungen in der Energieeffizienz von Gebäuden oder ein ressourcenschonender Umgang mit Wasser die Trinkwasserqualität ungünstig beeinflussen können.
Insbesondere die wesentlichen Merkmale von Low-Temperature-Systemen (auch als Lowex-Systeme bezeichnet), wie niedrige Vorlauftemperaturen – um die Wärmeverluste in den Wärmeverteilungs- und Wärmespeicherprozessen zu verringern und die Nutzung regenerativer Energiequellen zu erleichtern – können kontraproduktiv hinsichtlich der Hygieneziele sein. Die konsequente Umsetzung und Fortschreibung des Low-Temperature-Ansatzes in der Wärmeversorgung von Gebäuden scheitert somit an den unter Abwägung der hygienischen und gesundheitlichen Aspekten formulierten Anforderungen an die Systemtemperaturen auf der Trinkwarmwasserseite.
Ebenso können übertriebene Maßnahmen der Trinkwasserhygiene, wie nächtelanges Heißwasserspülen zu einer Kaltwasser-Verkeimung führen und gleichzeitig die Energieeffizienz-Potenziale im Bereich der Warmwassererzeugung auf Null reduzieren.
Begünstigtes Legionellenwachstum
Früher hatten es Keime schwerer, sich zu vermehren. Denn die Trinkwassersysteme waren noch sehr einfach aufgebaut: Wenige Zapfstellen, kurze Leitungswege, Warmwasser gab es direkt von dezentralen Warmwassergeräten. Heute lieben wir es komfortabler: Viele Zapfstellen sind über das ganze Gebäude verteilt, das warme Wasser erzeugen wir oft zentral im Technikraum und bevorraten es dort genauso wie in weit verzweigten Leitungsnetzen. Und wie beschrieben kommen heute die Faktoren Energie- und Rohstoffeffizienz hinzu, die ebenfalls das Legionellenwachstum begünstigen.
In Trinkwasserinstallationen, die nach den allgemein anerkannten Regeln der Technik geplant, gebaut, in Betrieb genommen, betrieben und gewartet werden, ist eine mikrobiologisch einwandfreie Trinkwasserbeschaffenheit an der Entnahmestelle auch ohne den Einsatz von Desinfektionstechniken (physikalisch/chemisch) möglich. Zu beachten sind dabei insbesondere diese Punkte:
- bestimmungsgemäßer Betrieb (u. a. eine regelmäßige und ausreichende Wasserentnahme)
- Temperatur des Kaltwassers unter 25 °C
- Temperatur des Trinkwarmwassers in der gesamten Zirkulation über 55 °C
Wird bei einer Kontrolluntersuchung der „technische Maßnahmenwert“ von 100 Legionellen pro 100 ml überschritten [1) siehe Literatur und Anmerkungen am Ende des Textes], ist unverzüglich das Gesundheitsamt zu informieren und es sind Abhilfemaßnahmen zu veranlassen, konkret eine Ortsbesichtigung, eine Gefährdungsanalyse und eine Überprüfung, ob die Trinkwasserinstallation den allgemein anerkannten Regeln der Technik entspricht.
Unter bestimmten Umständen ist eine vorübergehende Trinkwasserdesinfektion erforderlich und sinnvoll. Diese kann eine Sanierung nicht ersetzen, aber begleitend zu einer Sanierung sinnvoll sein – sie dient der Risikobegrenzung.
Das Arbeitsblatt DVGW W 551 [1, siehe Literatur und Anmerkungen am Ende des Textes] gibt Hinweise zur möglichen technischen Dekontamination von Trinkwasserverteilungsanlagen. Zur thermischen Desinfektion muss an allen Entnahmestellen mit einer Temperatur von 70 °C über 3 min gespült werden. Die praktische Erfahrung lehrt aber, dass dieses Temperaturniveau nur schwer in allen Teilen der Trinkwasserversorgung zu erreichen ist und sich der gewünschte dauerhafte hygienische Erfolg nicht einstellt (ein Biofilm wird durch eine thermische Desinfektion kaum geschädigt).
DVGW W 551 sieht für diesen Fall dann zusätzliche verfahrenstechnische Maßnahmen (chemische Desinfektion, UV-Bestrahlung etc.) und bautechnische Maßnahmen zur Sanierung vor. „Erfahrungsgemäß ist häufig eine Kombination verschiedener Sanierungsverfahren notwendig, um einen langfristigen Erfolg sicherzustellen“, so das Robert Koch Institut (RKI).
Zu beachten ist dabei dies: Legionellen und andere Keime wechseln unter Stressbedingungen in erheblichem Umfang in einen Schlafzustand (VBNC-Zustand = viabel but non culturabel = lebensfähig, doch nicht kultivierbar). Zu diesen Stressfaktoren zählen unter anderem ungünstige Umgebungstemperaturen und die Anwesenheit von Desinfektionsmitteln. Der VBNC-Status erhöht die Widerstandsfähigkeit gegenüber thermischen oder chemischen Desinfektionen. Endet der Stress, sind die Keime wieder aktiv.
Desinfektion mit Chlordioxid
Was also tun bei einer Verkeimung? Nur bauliche und betriebstechnische Maßnahmen können das Problem dauerhaft lösen: Temperaturen kontrollieren, nicht benötigte Leitungsteile (Totleitungen) kappen, regelmäßiges Spülen von Leitungsbereichen, die selten genutzt werden.
Für eine zeitnahe Problemlösung bei akuter Verkeimung bietet der Markt ein breites Verfahrensspektrum an, allerdings ist kein Verfahren völlig frei von Nachteilen. Grundfos hat die aus Sicht des Unternehmens am besten geeigneten Verfahren in Produktlösungen umgesetzt (Vaccuperm arbeitet mit Chlor, Selcoperm nutzt Hypochlorit, Oxiperm produziert Chlordioxid). Bei Gebäuden ist Oxiperm unter anderem wegen Handlingvorteilen oft die Technologie der Wahl.
Chlordioxid (ClO2) tötet Mikroorganismen im Wasser durch eine irreversible oxidative Zerstörung der Transportproteine in den lebenden Zellen. Aufgrund seines hohen Redoxpotenzials hat Chlordioxid im Vergleich zu anderen Bioziden eine weitaus stärkere Desinfektionswirkung gegen alle Arten von Keimen oder Verunreinigungen, wie Viren, Bakterien, Pilze und Algen. Das Oxidationspotenzial ist höher als beispielsweise bei Chlor, sodass auch deutlich weniger Chemie eingesetzt werden muss (das unterstützt das Minimierungsgebot laut EU-Trinkwasserrichtlinie). Freie Legionellen können durch Chlordioxid sicher abgetötet werden.
Ein weiterer wesentlicher Unterschied von Chlordioxid gegenüber Chlor bzw. Hypochlorit (Salz der hypochlorigen Säure HClO) ist die allmähliche Abbauwirkung auf den Biofilm bei geringen Dosen – das Biotop von Legionellen ist vor allem der Biofilm. So wird bei einer Konzentration von 1 ppm innerhalb von 18 h ein Legionellenabbau im Biofilm von nahezu 100 % erreicht. Eine deutliche Reduktion des Biofilms kann in der gleichen Zeit bei einer Konzentration von 1,5 ppm erreicht werden. Des Weiteren ist das Desinfektionsvermögen von Chlordioxid vom pH-Wert nahezu unabhängig. Die Vorteile einer Wasserbehandlung mit Chlordioxid:
- Das selektive Desinfektionsmittel bildet keine Chloramine. Dies ist besonders wichtig bei erhöhtem Ammoniumgehalt im Trinkwasser.
- Chlordioxid kann bei einem pH-Wert von 6,5 bis 9 mit einer gleich hohen Desinfektionswirkung eingesetzt werden.
- Chlordioxid ist weitgehend geruchs- und geschmacksneutral (bei 0,5 bis 3 ppm).
- Hohe Desinfektionsleistung mit Depotwirkung.
- Löst und entfernt Biofilm.
- Keine Resistenzen von Keimen gegenüber Chlordioxid bekannt.
Desinfektionsanlage Oxiperm Pro
Die Desinfektionsanlage Oxiperm Pro besteht aus einem Systemträger aus Kunststoff, auf den die internen Komponenten montiert sind. Er wird an der Wand oder am Boden befestigt und durch eine Haube aus Kunststoff abgedeckt.
Die Herstellung des Chlordioxids erfolgt bedarfsgesteuert nach dem Natriumchlorit/Salzsäure-Verfahren aus verdünnten Ausgangslösungen. Bei Oxiperm Pro reagieren beide Ausgangskomponenten im Volumenverhältnis 1 : 1, das Resultat sind geringe Betriebskosten und ein geringes Korrosionsrisiko. Die Chemikalien werden aus zwei Behältern zugeführt, die bei Anlagen bis 10 g/h in zwei Auffangwannen direkt unter der Anlage stehen oder in getrennten Auffangwannen für jeden Behälter bei Anlagen mit 30 g/h und mehr. In jedem Behälter steckt eine Sauglanze, die fest mit der entsprechenden Chemikalien-Dosierpumpe im Gerät verbunden ist. Die Anlage ist an zwei Wasserleitungen angeschlossen: Die Trinkwasserleitung für die Zufuhr von Verdünnungs- und Spülwasser und die zu desinfizierende Hauptwasserleitung, in die die fertige ClO2-Lösung dosiert wird.
Oxiperm Pro ist in vier Leistungsstufen verfügbar und produziert 5, 10, 30 und 60 g/h ClO2. Diese Leistung reicht aus, um bis zu 150 m3/h Trinkwasser zu behandeln (bei einer maximalen Zugabe von 0,4 mg/l ClO2). Kompakt gebaut, kann eine Oxiperm-Pro-Anlage auch in kleinen Räumen installiert werden; alle Bedien- und Kontrollelemente befinden sich auf der Gerätefront. In der Anlagensteuerung ist bereits standardmäßig eine Messwerterfassung für Chlordioxid, pH-Wert oder Redox-Zahl integriert: Durch den Anschluss der Messzelle wird die gemäß TrinkwV erforderliche Messpflicht erfüllt. Zusätzlich steht für die gemessene Chlordioxid-Konzentration ein Analogausgang zur Verfügung. So besteht die Möglichkeit, den Messwert an eine Leitwarte zu senden oder diesen mit einem bauseitigen Datenlogger zu protokollieren.
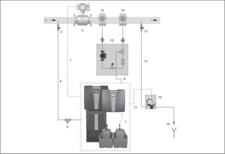
Oxiperm-Pro-Anlage (1), Hauptwasserleitung (2), Verdünnungswasser-Entnahmeeinheit (3), Verdünnungswasserleitung (4), Schmutzfänger (5), Durchflussmessung (6), Signalleitung Durchflussmessung (7), Dosierleitung (9), Chlordioxid-Messzelle (10), Signalleitung Chlordioxmessung (11), Messwasser-Entnahmeeinheit, Mindestabstand zur Impfarmatur 5m (12), Messwasserleitung (13), Anbohrschellen (14), Mischmodul (15) und Abfluss (16).
Oxiperm-Pro-Anlagen können installiert und in Betrieb genommen werden, ohne die Wasserversorgung im Gebäude zu unterbrechen – in Krankenhäusern oder Altenheimen ist dies ein wichtiger Aspekt. Dazu kommt ein Bypass-Modul zum Einsatz. Für diese Variante ist es nicht notwendig, die Wasserleitung zu öffnen und so den Wasserstrom zu unterbrechen. Die Entnahme und Rückführung des Bypass-Wassers erfolgt über Anbohrschellen.
Dieser Artikel von Daniel Wittoesch ist zuerst erschienen in TGA Fachplaner/03-2019. Daniel Wittoesch ist Vertriebsleiter Gebäudetechnik Projektegeschäft für die Region Nord/West bei Grundfos.
Literatur und Anmerkungen
[1] DVGW W 551 Trinkwassererwärmungs- und Trinkwasserleitungsanlagen – Technische Maßnahmen zur Verminderung des Legionellenwachstums – Planung, Errichtung, Betrieb und Sanierung von Trinkwasser-Installationen. Bonn: Deutscher Verein des Gas- und Wasserfaches, April 2004
1) Die TrinkwV definiert den technischen Maßnahmenwert als "Wert, bei dessen Überschreitung eine von der Trinkwasser-Installation ausgehende vermeidbare Gesundheitsgefährdung zu besorgen ist und Maßnahmen zur hygienisch-technischen Überprüfung der Trinkwasser-Installationen im Sinne einer Gefährdungsanalyse eingeleitet werden" (müssen).


