Badmodernisierung: So wird ein 80er-Jahre Bad altersgerecht und modern
Eine Aufgabe, wie sie im (Badgestalter-)Buch steht:
- Das Bad soll altersgerecht modernisiert werden. Und trotz Barrierefreiheit gut aussehen.
- Mehr Platz soll geschaffen werden: Ein Dusch-WC ersetzt WC und Bidet, die Dusche erhält Bank und Nischen für Accessoires.
- Mit geraden Linien für Klarheit sorgen: Fliesenplan und Vorwandgestaltung betonen eindeutige Kanten und Linien im Raum, ohne streng zu wirken.
- Mit der Optik spielen: Helle und dunkle Wandfliesen lockern die Wahrnehmung des gestreckten Raums auf.
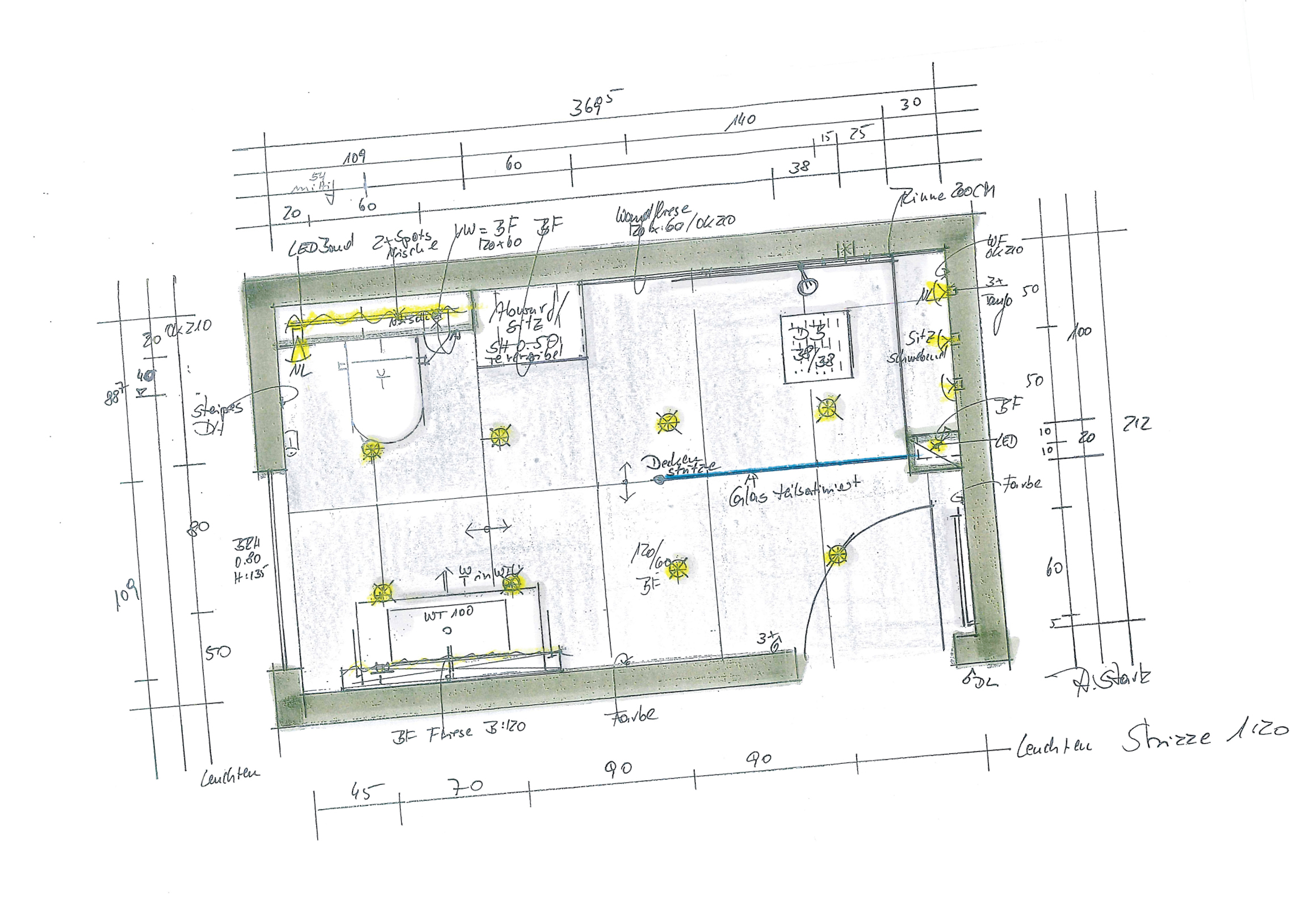
Ein Bauherrenpaar möchte das funktionale und immer noch ansprechende Badezimmer, das im Erdgeschoss gegenüber dem Schlafzimmer liegt, renovieren. Die Dusche ist bereits bodenbündig gestaltet, aber mit 90 cm im Quadrat nicht sonderlich großzügig. Gestaltung und Farbgebung erinnern an die 1980er-Jahre und passen somit nicht mehr zu dem Einfamilienhaus im Bergischen Land, in dem in den letzten Jahren fast alle Bereiche dem aktuellen Anspruch der Bauherren angepasst wurden.
Der Wunsch, den Raum auch für das Alter perfekt auszustatten, steht im Vordergrund. Daneben das Ziel einer aufgeräumten, klassischen und reduzierten Ausstrahlung in Schwarz-Weiß. Der Doppelwaschtisch kann durch ein größeres Solomodell mit ausreichend Stauraum ersetzt werden, auf den Komfort des Wäscheabwurfes und auch auf das Bidet zur erweiterten Körperhygiene soll nicht verzichtet werden. Der Raum zeigt in den Grundmaßen eine deutliche Längsstreckung.
Da die Duschzone als großes Element nicht vor dem Fenster an der Kopfseite des Raumes positioniert werden soll, muss die Farbgestaltung im Raum dafür sorgen, dass die Längsstreckung aufgehoben wird, um eine harmonische, quadratische Wirkung zu erzeugen. Die Position des Wäscheabwurfes sollte beibehalten werden, da er durch die Betondecke hindurch direkt in den Waschkeller mündet.
Dusch-WC ersetzt Bidet
Die Bauherren sind gegenüber dem Vorschlag, WC und Bidet in einem komfortablen Dusch-WC zu vereinen, aufgeschlossen. Das schafft genügend Platz für eine großzügige, frei zugängliche Duschzone mit einer Sitzgelegenheit. Eine schmale Trockenbauwand in 30 cm Tiefe wird zum Ende der Duschzone erstellt. In der verbleibenden Breite von 100 cm bindet sich daran eine freischwebende Sitzbank aus Bauplattenmaterial an. Diese wirkt leicht und ist dennoch komfortabel zum Sitzen oder Abstellen der Füße im Duschbereich.
Den schwebenden Charakter unterstützen die bodennah angebrachten Einbauleuchten, deren Licht von den dunklen Bodenfliesen reflektiert wird. Sitz und Trockenbauwand werden als Gestaltungselemente gleichfalls mit diesen Fliesen belegt. Die beiden Shampoonischen – ebenfalls mit kleinen LED-Spots beleuchtet – verstecken elegant die Shampooflaschen. Die exakte Arbeit des Fliesenlegermeisters ermöglicht es, alle Schnittkanten als Gehrungskanten auszuarbeiten und somit Metallschienen zu vermeiden.
Harmonische Linienführung
Die Nischen in der Dusche sind nicht als quadratische Kisten gearbeitet, sondern zur Kopfseite hin offen. Die helle Wandfliese verläuft als Seitenwange in die linke Nischenseite hinein, abgestimmt auf den Fugenschnitt. Das erzeugt eine sehr harmonische Linienführung und lässt die beiden Wandgestaltungen miteinander verschmelzen.
Der in der Handhabung einfache Unterputzthermostat an der Seitenwand der Dusche versorgt die Deckendusche, die bündig in der Abhangdecke eingelassen ist, und eine Handbrause, die an einem praktischen und formschönen Relingsystem höhenverstellbar positioniert ist. Es besteht die Möglichkeit, mit ausreichend Platz unter der Deckendusche sowohl einen erfrischenden Regenguss zu erleben als auch im Sitzen mit der Handbrause die tägliche Hygiene vorzunehmen. Um die exakte Geradlinigkeit fortzuführen, verlaufen die Außenkanten von Thermostat und Deckendusche in einer Geraden.
Bodenebene Dusche mit Linienentwässerung
Die durchlaufende Linienentwässerung mit einer Länge von 200 cm an der Längsseite der Dusche nimmt das Duschwasser auf. Der gesamte hintere Bereich des Bades ist im Gefälle gelegt; somit können die großformatigen Fliesen als Ganzes wirken und müssen nicht durch Gefälleschnitte unterbrochen werden.
Zum Ende der Duschzone wird der Wäscheabwurf als Sitzelement ausgearbeitet. Der durch den Schreiner angefertigte Holzkasten wird bauseits verfliest und durch einen Klappdeckel in Weiß verschlossen. Die Bauherren können weiterhin ihre Wäsche abwerfen, aber den Würfel auch als Sitzelement, als Ablage oder zum Abstellen der Füße beim Abtrocknen nutzen. Die Breite des Würfels ist genau auf eine Fliesenbreite angepasst und gibt somit auch den weiteren Fugenschnitt vor.
Der Raum wird durch eine längs verlaufende Fuge geteilt, die zugleich die Tiefenbegrenzung der Duschzone und die Position der maßgeschneiderten Glasscheibe ist. Dies ist einer der entscheidenden Aspekte, die Fliesen in einer Breite von 120 cm zu wählen. Das WC schmiegt sich in die Ecke neben dem Fenster. Die neue Vorwand ist über die funktionale Höhe von 120 cm hinaus ausgearbeitet bis zur Oberkante der Wandfliesen in Höhe von 210 cm.
Hier spiegelt sich die seitlich offene Nische, die mit LED-Spots beleuchtet ist und für Dekorationsgegenstände zur Verfügung steht. Auch hier läuft die helle Wandfliese in die Nische im Fugenschnitt hinein; der gesamte WC-Bereich steht durch die Verfliesung mit den dunklen Bodenfliesen im Vordergrund. Der Papierhalter hängt praktisch im rechten Winkel zur Toilette, die WC-Bürste verschwindet unsichtbar hinter einer verfliesten Klappe.
Die Kopfseite des Raumes entfaltet mit einer deckenhohen Gestaltung ihre Wirkung. In der Farbe der dunklen Fliesen, aber mit einem eigenen Format in Riemchenoptik rückt diese Wandgestaltung den Raum in das richtige Format. Zu bedenken ist allerdings, dass bei Sonneneintritt durch das große Fenster die Wand im Gegenlicht noch dunkler erscheint. Eine Fensterdekoration mit einem Raffrollo oder Plissee erscheint als sinnvolle Investition.
Dem WC gegenüber befindet sich der Waschtisch an einer liegenden Fliesenreihe aus den dunklen Bodenfliesen. Die Querfuge in Höhe von 90cm verläuft im gesamten Fliesenbereich und hier genau auf der Oberkante des Waschtisches aus Porzellan. Ein Unterschrank mit zwei Laden und ein breiter Spiegelschrank mit optimaler Lichttechnik runden das Ensemble ab und dienen als Stauraum im Bad.
Neben dem Waschtisch steht eine große freie Fläche für ein Bild zur Verfügung, das sich die Bauherren noch aussuchen oder anfertigen lassen möchten. Für diesen wichtigen Dekorationsgegenstand verbleibt der Badheizkörper unsichtbar an seinem alten Platz hinter der Tür. Dieser Raum gewinnt durch seine geradlinige und reduzierte Möblierung an Größe, die strenge Linienführung verleiht das Gefühl der klaren Ordnung, die Grundfarbe Schwarz-Weiß in natürlichen Nuancen vermittelt einen klassischen
Charakter.
Licht von Rot über Blau bis Grün
Die Wärme im Raum, Lebendigkeit und immer wieder neu einstellbare Farbnuancen werden durch die aufwendige Lichttechnik erreicht. Neben dem Funktionslicht am Spiegelschrank leuchten die kleinen LED-Spots in den Nischen und die indirekte LED-Beleuchtung über dem WC-Modul als Effektlicht zeitgleich auf. Eine kleine LED-Leuchte neben dem WC und drei Spots unter der Sitzbank werden über einen Bewegungsmelder gesteuert, leuchten beim Betreten des Raumes den Boden automatisch aus und weisen den Weg beim nächtlichen Badbesuch.
Die multifunktionalen Deckenleuchten werden getrennt gesteuert und besitzen neben der üblichen Dimmfunktion auch die Möglichkeit, die Lichttemperatur und auch die Lichtfarbe individuell einzustellen. So kann die Aussage im Raum je nach eingestellter Farbnuance jedes Mal neu gewählt werden.
Ein warmer Rotton, ein kühles Blau oder eine beruhigende Grünnuance finden in dem Raum ideale Möglichkeiten, sich zu entfalten und die Ausstrahlung immer wieder neu maßgeblich zu beeinflussen. Diese Technik gipfelt in der Möglichkeit, biodynamisches Licht zu wählen, bei dem die Lichttemperatur passend zur Tageszeit automatisch eingestellt wird. Dieses natürliche und wohltuende Gefühl ist der Natur nachempfunden.
Lesetipp: Bäder neu gestalten
„Bäder neu gestalten“ von Andrea Stark
Die 2. Auflage ist aktualisiert und wurde mit zahlreichen neuen Badbeispielen aus der Praxis der Autorin erweitert. Diese zeigen u. a. viele zeitgemäße Gestaltungsideen mit Fliesen sowie individuelle Lösungen für schwierige Raumsituationen. Mit ihrer umfangreichen Kollektion an reich bebilderten Beispielen aus der Praxis bietet die Sammlung viele Anregungen für den Umbau und die Modernisierung von Bädern. Das Buch mit 316 Seiten und 558 farbigen Abbildungen kostet 59 Euro (Verlagsgesellschaft Rudolf Müller, ISBN Buch: 978-3-481-04144-1, ISBN E-Book: 978-3-481-04145-8).www.baufachmedien.de
Dieser Artikel von Andrea Stark-Niehaus erschien zuerst in SBZ-Ausgabe 01/2023. Andrea Stark-Niehaus ist seit mehr als 25 Jahren Innenarchitektin im Bäderbau mit „Starkberaten“ tätig. Sie hält Vorträge zur Ausstattung von Badezimmern, gibt Seminare zur Badplanung und -gestaltung und ist Fachautorin.


