UMAR: So geht ressourcenschonendes Bauen
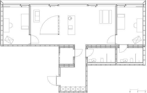
Auf dem Campus des schweizerischen Forschungsinstituts Empa eröffnete Anfang Februar die Experimentaleinheit Urban Mining & Recycling UMAR: ein sortenrein aus wiederverwendbaren, wiederverwertbaren oder kompostierbaren Materialien konstruiertes Wohnmodul, das aus drei Räumen besteht. Der Entwurf stammt von Werner Sobek mit Dirk Hebel und Felix Heisel. Prof. Sobek ist Leiter des Instituts für Leichtbau Entwerfen und Konstruieren der Universität Stuttgart und Gründer der gleichnamigen Firmengruppe. Die Experimentaleinheit UMAR zeigt auf, dass es möglich ist, ressourcenschonend zu bauen und zugleich eine ansprechende Architektur zu schaffen.
„Das anhaltende Wachstum der Weltbevölkerung und zur Neige gehende Ressourcen erfordern dringend ein Umdenken im Bauwesen“, formuliert Werner Sobek sein Anliegen. Der in Stuttgart ansässige Architekt und Ingenieur gilt als Pionier des nachhaltigen Bauens und widmet sich dieser Aufgabe mit zahlreichen Projekten in Forschung und Lehre. Auch sein jüngstes Vorhaben – die neu eröffnete, experimentelle Wohneinheit UMAR – ist von globalem Interesse und mit verschiedenen Institutionen verbunden.
Die Experimentaleinheit UMAR ist Teil des Forschungsgebäudes NEST auf dem Campus der Eidgenössischen Materialprüfungs- und Forschungsanstalt Empa im schweizerischen Dübendorf. Entworfen wurde das sortenrein aus wiederverwendbaren, wiederverwertbaren oder kompostierbaren Materialien konstruierte Wohnmodul von Werner Sobek mit Dirk E. Hebel und Felix Heisel, beide vom Karlsruher Institut für Technologie KIT, Nachhaltiges Bauen. Es zeigt auf, dass es möglich ist, verantwortlich mit den verfügbaren Ressourcen umzugehen und zugleich eine ansprechende Architektur zu schaffen – eines der wichtigsten Anliegen von Werner Sobek.
Wiederverwendbar, wiederverwertbar oder kompostierbar
Sämtliche zur Herstellung eines Gebäudes benötigten Ressourcen müssen vollständig wiederverwendbar, wiederverwertbar oder kompostierbar sein – das ist die dem Entwurf der UMAR zugrundeliegende These. Eine zentrale Rolle spielt die Kreislaufwirtschaft: Die verwendeten Materialien werden nicht verbraucht und dann entsorgt; sie sind vielmehr für eine bestimmte Zeit aus einem technischen bzw. natürlichen Kreislauf entnommen und werden später wieder in diese Kreisläufe zurückgeführt. Wiederverwendung und Wiederverwertung spielen hierbei eine ebenso große Rolle wie Recycling und Upcycling. Dies erfolgt auf systemischer wie auf molekularer beziehungsweise biologischer Ebene, z.B. durch Einschmelzen oder Kompostierung. UMAR ist so zur gleichen Zeit temporäres Materiallager und Materiallabor.
Folgende Ansätze liegen der Experimentaleinheit UMAR zugrunde:
- Temporäres Entnehmen bzw. Entleihen statt permanentem Erwerben und Entsorgen
- Maximale Modularisierung und Vorfertigung
- Sortenreine Entnehmbarkeit aller Materialien und Produkte
Die Werkstoffe sind u.a. unbehandeltes Holz, rezyklierfähige Metalle, Recyclingsteine und wiederverwertete Isolationsmaterialien
Der komplett vorfabrizierte und im Werk getestete Bau ist in Modulbauweise ausgeführt. Das Tragwerk besteht ebenso wie große Teile der Fassade aus unbehandeltem Holz, das nach dem Rückbau wiederverwendet bzw. kompostiert werden kann. Die Fassade besteht darüber hinaus aus Aluminium und Kupfer. Beide Metallarten können sortenrein eingeschmolzen und rezykliert werden. Im Innenbereich werden verschiedenste, seriell verarbeitete Bauprodukte eingesetzt, deren unterschiedliche Materialien rückstandsfrei in ihre unterschiedlichen Stoffkreisläufe zurückgeführt werden können. Unter anderem kommen hier gewachsene Myzeliumplatten, innovative Recyclingsteine, wiederverwertete Isolationsmaterialien, geliehene Bodenbedeckungen, sowie eine multifunktionale Solarthermieanlage zum Einsatz.
Ideengeber für ressourcenschonendes Bauen
Die Unit UMAR ist nicht nur ein Materialspeicher, sondern auch ein öffentlicher Informationsspeicher, der als Vorbild und Anregung für andere Bauvorhaben dienen soll. „Wir müssen künftig mit sehr viel weniger Materialien für sehr viel mehr Menschen bauen. „UMAR will einen Beitrag zum fälligen Paradigmenwechsel im Bauwesen leisten. Das Modul dient als Laboratorium und Testlauf für ein Bauprojekt ebenso wie für den damit verbundenen Prozess. Ziel ist es, mit Partnern aus Planung, Verwaltung und Produktion zentrale Fragen des Bauwesens und des Ressourcenverbrauchs zu betrachten und daraus innovative Werkzeuge und Methoden zu entwickeln“, formuliert Werner Sobek sein Anliegen.
Daten und Fakten
- Projektteam: „Urban Mining & Recycling“
- Bauherrschaft: Empa, Eidg. Materialprüfungs- und Forschungsanstalt, Dübendorf, Schweiz
- Konzeption, Entwurf und Objektplanung: Werner Sobek mit Dirk E. Hebel und Felix Heisel, Stuttgart und Karlsruhe, Deutschland
Über die Empa
Die Empa ist ein interdisziplinäres Forschungsinstitut der ETH Zürich und dem Bereich Materialwissenschaften und Technologie zugeordnet. Als Brücke zwischen Forschung und praktischer Anwendung erarbeitet sie Lösungen für die vorrangigen Herausforderungen der Industrie und schafft die wissenschaftlichen Grundlagen für eine nachhaltige Entwicklung unserer Gesellschaft. Als Institution des ETH-Bereichs ist die Empa in all ihren Tätigkeiten der Exzellenz verpflichtet.
Über NEST
NEST beschleunigt den Innovationsprozess im Gebäudebereich. Im modularen Forschungs- und Innovationsgebäude der Empa und Eawag werden neue Technologien, Materialien und Systeme unter realen Bedingungen getestet, erforscht, weiterentwickelt und validiert. Die enge Kooperation mit Partnern aus Forschung, Wirtschaft und öffentlicher Hand führt dazu, dass innovative Bau- und Energietechnologien schneller auf den Markt kommen.
Über Werner Sobek
Die 1992 von Werner Sobek gegründete und nach ihm benannte Firmengruppe steht weltweit für Engineering, Design und Nachhaltigkeit. Das Unternehmen hat Niederlassungen in Stuttgart, Buenos Aires, Dubai, Frankfurt, London, Moskau und New York und beschäftigt über 300 Mitarbeiter. Alle Projekte, für die Werner Sobek verantwortlich zeichnet, überzeugen durch hochwertige Gestaltung auf der Basis von erstklassigem Engineering und ausgeklügelten Konzepten zur Minimierung von Energie- und Materialverbrauch. Im Jahr 2015 wurde der Firmengründer Werner Sobek für sein Lebenswerk mit dem Fritz-Leonhardt-Preis ausgezeichnet.
Das Fachportal für die Gebäudetechnik
